image alt
СкайВуд
Современный компактный дом в скандинавском стиле с продуманной планировкой и большими окнами, наполняющими пространство светом. Удобная терраса для отдыха и всё необходимое для комфортной жизни внутри. Особое преимущество — собственная сауна, которая превращает дом в идеальное место для расслабления в любое время года.

Площадь дома:
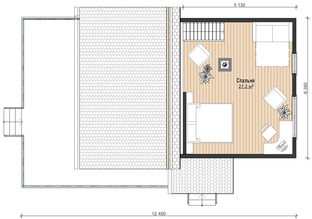
Общая площадь — 79м²
Терраса —31м
²
Варианты комплектаций
А также вы можете заказать индивидуальную комплектацию
  • Базовая

    2 853 600₽

    • Фундамент - свайно-винтовой с обвязкой деревянным брусом
    • Комплект дома по проекту
    • Сборка дома
    • Наружная отделка - стен, цоколя и кровли, окна, наружные двери, устройство крыльца
    • Внутренняя чистовая отделка
    • Инженерные коммуникации - сантехника, электрика, отопление-вентиляция, водоснабжение-канализация
    Выбрать
  • Стандарт

    4 269 600₽

    • Фундамент - свайно-винтовой с обвязкой деревянным брусом
    • Комплект дома по проекту
    • Сборка дома
    • Наружная отделка - стен, цоколя и кровли, окна, наружные двери, устройство крыльца
    • Внутренняя чистовая отделка
    • Инженерные коммуникации - сантехника, электрика, отопление-вентиляция, водоснабжение-канализация
    Выбрать
  • Под ключ

    5 871 631₽

    • Фундамент - свайно-винтовой с обвязкой деревянным брусом
    • Комплект дома по проекту
    • Сборка дома
    • Наружная отделка - стен, цоколя и кровли, окна, наружные двери, устройство крыльца
    • Внутренняя чистовая отделка
    • Инженерные коммуникации - сантехника, электрика, отопление-вентиляция, водоснабжение-канализация
    Выбрать
  • image alt
  • image alt